Web Design
Residenz

Komfortable Luxus Residenz mit Mezzanin, Kamin, im Keller Sauna, Fitnessraum, Wirlpool  475,25 m²

Residenz
Residenz (1)
Residenz (7)
Residenz (8)
Residenz (9)
Residenz (10)

reine Wohnfläche 277,61m²

+ wirtschaftlicher Teil Keller 167,15m²

Bebauungsfläche 198,15m²

Gesamtfläche 475,25m²+ Dachboden

Kubatur 1500m³

Dachfirsthöhe 9.23m

Dachneigungswinkel 37°

minimale Grundstückgröße 26x20 m

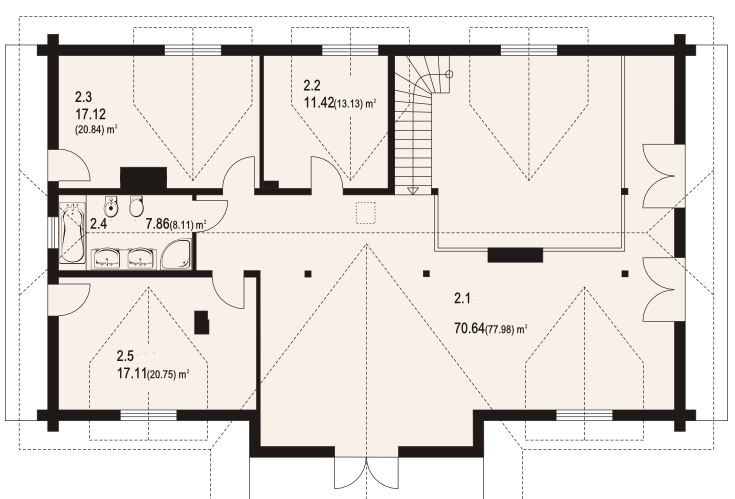
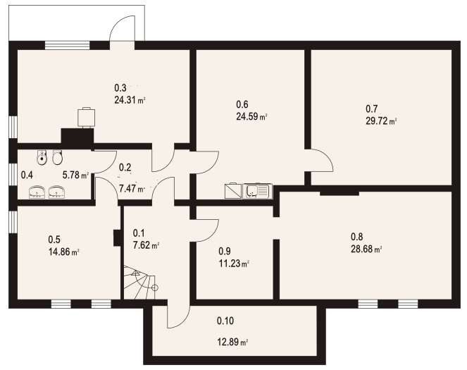
Erdgeschoß mit Wohnzimmer, Küche und Kamin sowie 2 Gästezimmer und 2 Bäder ausgestattet. Im Zwischengeschoss mit Mezzanin, 2 Schlafzimmer, 1 Ankleideraum,1 Bad, sowie einem großen Foyer. Im Keller Sauna, Fittnessraum und Wirlpool. 3 große Balkone. Im Außenbereich könnenSwimmingpool, Garagen, Gartenhaus und ein großer Garten entstehen.

 

[Residenz Luxusholzhaus] [Residenz] [Haus 1] [Haus 2] [Haus 3] [Haus 4] [Haus 5] [Haus 6] [Haus 7] [Haus 8] [Haus 16] [Haus 21] [Haus 22] [Garage 1] [Garage 2] [Garage 3] [Garage 4] [Gartenhaus, etc.] [Vorteile] [Technologie] [Preise] [Grand Luxus] [Kontakt]