Web Design
Haus 4

Komfortables Luxus Haus mit Mezzanin, Kamin, Keller, Garage, im Keller Sauna, Fitnessraum, 388,99 m²

9
9__1_
9__2_
9__3_
9__4_
9__5_

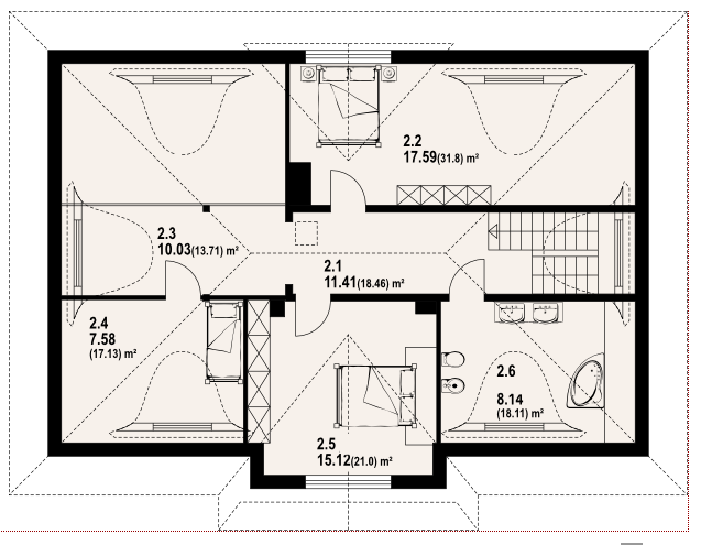
reine Wohnfläche 195,15m²

+ wirtschaftlicher Teil Keller 128m²

Bebauungsfläche 160,16m²

Gesamtfläche 388,99m²+ Dachboden

Kubatur 1300m³

Dachfirsthöhe 9,46m

Dachneigungswinkel 37°

minimale Grundstückgröße 23,2x20,9 m

[Residenz Luxusholzhaus] [Residenz] [Haus 1] [Haus 2] [Haus 3] [Haus 4] [Haus 5] [Haus 6] [Haus 7] [Haus 8] [Haus 16] [Haus 21] [Haus 22] [Garage 1] [Garage 2] [Garage 3] [Garage 4] [Gartenhaus, etc.] [Vorteile] [Technologie] [Preise] [Grand Luxus] [Kontakt]