Web Design
Haus 6

Komfortables Luxus Haus mit Keller und Kamin, 294,65 m²

5
5 (1)
5 (6)
5 (7)
5 (8)
5 (9)

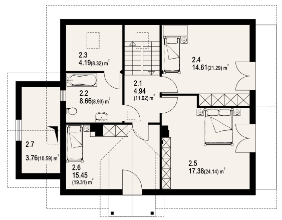
reine Wohnfläche 148,08m²

+ wirtschaftlicher Teil Keller 96,69m²

Bebauungsfläche 144,81m²

Gesamtfläche 294,65m²+ Dachboden

Kubatur 950,72m³

Dachfirsthöhe 8,86m

Dachneigungswinkel 42°

minimale Grundstückgröße 21,9x19,1 m

[Residenz Luxusholzhaus] [Residenz] [Haus 1] [Haus 2] [Haus 3] [Haus 4] [Haus 5] [Haus 6] [Haus 7] [Haus 8] [Haus 16] [Haus 21] [Haus 22] [Garage 1] [Garage 2] [Garage 3] [Garage 4] [Gartenhaus, etc.] [Vorteile] [Technologie] [Preise] [Grand Luxus] [Kontakt]