Residenz

Komfortable Luxus Residenz mit Mezzanin, Kamin, im Keller Sauna, Fitnessraum, Wirlpool 475,25 m²

 

Residenz
Residenz__1_
Residenz__7_
Residenz__8_
Residenz__9_
Residenz__10_

reine Wohnfläche 277,61m²

+ wirtschaftlicher Teil Keller 167,15m²

Bebauungsfläche 198,15m²

Gesamtfläche 475,25m²+ Dachboden

Kubatur 1500m³

Dachfirsthöhe 9.23m

Dachneigungswinkel 37°

minimale Grundstückgröße 26x20 m

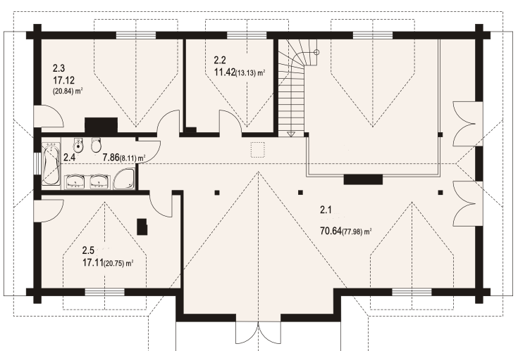
Erdgeschoss bietet:

- Wohnzimmer, Kamin
- Küche
- 2 Gästezimmer, 2 Bäder

Dachgeschoss mit Zwischengeschoss ( Mezzanin)
- 2 Schlafzimmer, 1 Bad

Keller
- mit Sauna, Fintnessraum, Wirlpool

 

[Luxusholzhaus] [Residenz] [Haus 1] [Haus 2] [Haus 3] [Haus 4] [Haus 5] [Haus 6] [Haus 7] [Haus 8] [Außen] [Vorteile] [Preise] [Kontakt]
Web Design