|
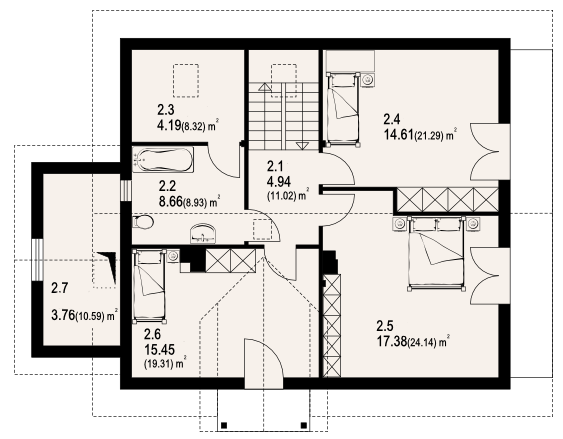
Komfortables Luxus Haus mit Keller und Kamin, 294,65 m²
|
|||
![]() |
![]() |
![]() |
![]() |
![]() |
|||
|
reine Wohnfläche 148,08m² + wirtschaftlicher Teil Keller 96,69m² Bebauungsfläche 144,81m² Gesamtfläche 294,65m²+ Dachboden Kubatur 950,72m³ Dachfirsthöhe 8,86m Dachneigungswinkel 42° minimale Grundstückgröße 21,9x19,1 m
|
|||
| [Luxusholzhaus] [Residenz] [Haus 1] [Haus 2] [Haus 3] [Haus 4] [Haus 5] [Haus 6] [Haus 7] [Haus 8] [Außen] [Vorteile] [Preise] [Kontakt] |