|
Komfortables Luxus Haus mit Keller, Garage und Kamin 354,39 m²
|
![]() |
![]() |
![]() |
![]() |
![]() |
||||
![]() |
||||
|
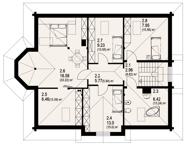
reine Wohnfläche 173.50m² + wirtschaftlicher Teil Keller 108.58m² Bebauungsfläche 140.00m² Gesamtfläche 354.39m²+ Dachboden Kubatur 1130m³ Dachfirsthöhe 9.15m Dachneigungswinkel 40° minimale Grundstückgröße 22.20x22.50m
|
||||
| [Luxusholzhaus] [Residenz] [Haus 1] [Haus 2] [Haus 3] [Haus 4] [Haus 5] [Haus 6] [Haus 7] [Haus 8] [Außen] [Vorteile] [Preise] [Kontakt] |